


137 200 ₽/м²
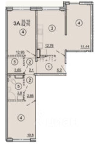
Продаётся квартира с отделкой "под ключ" в ЖК "Гагарин" (г. Ярославль, ул. Дядьковская) от застройщика Тверской ДСК ключи сразу после покупки! Тверской ДСК крупнейший застройщик с 20-летним опытом представляет свой проект в Ярославле! Дом уже сдан, и вы можете сразу заселиться никаких рисков и ожиданий. Расположение: популярный район Сокол, ул. Дядьковская, д. 16а. Квартиры с готовой отделкой заезжайте сразу: Ламинат на полу; Декоративная штукатурка на стенах; Установлены межкомнатные двери; Окрашенные потолки; Частичная облицовка пола и стен в санузле плиткой; Установленная сантехника. Почему выбирают ЖК "Гагарин"? Комфорт-класс и благоустроенная территория. Многофункциональные планировочные решения. Паркинг удобство для автомобилистов. Развитая инфраструктура необходимое все рядом. Магазины и ТЦ: ТЦ "Адмирал", "Аксон", "Фреш", "Metro" 7 мин пешком Школы: 91 (10 мин пешком), 21, 88 Детские сады: 96, 99 Фитнес-клуб "Loft Fitness" 7 мин пешком Аквапарк 5 мин на машине Аптеки, остановки транспорта в шаговой доступности Выгодные условия покупки: Наличный расчет специальные цены на старте продаж. Льготная ипотека от 6% поможем с оформлением. Сертификаты государственные субсидии. Отделка включена в ипотеку экономьте сразу. Звоните! Поможем выбрать подходящий вариант и оформим сделку быстро и безопасно.













































































