

124 247 ₽/м²
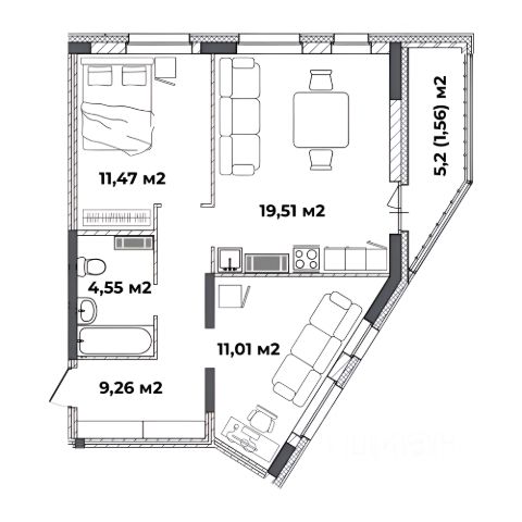
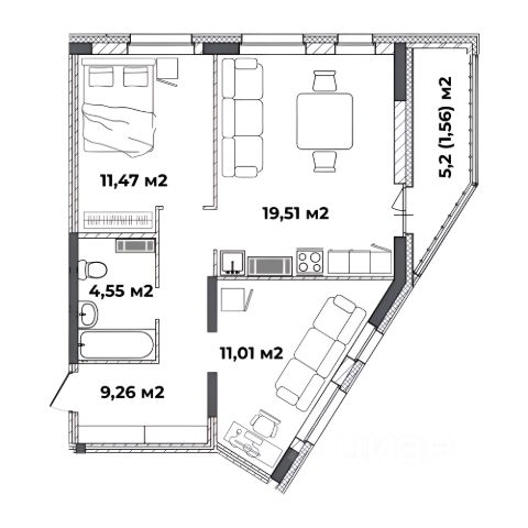
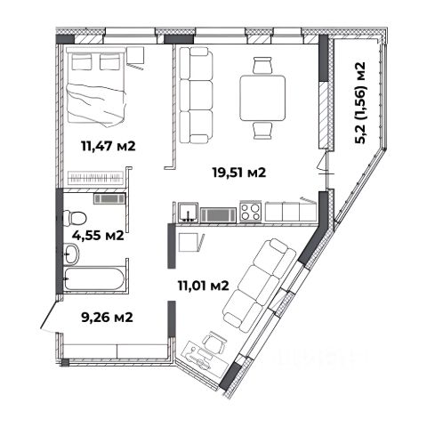
Новый дом ЖК Московский квартал дом 2 3 очередь, ввод 1 кв. 2027 г 2-комнатная с просторной кухней-гостиной и двумя отдельными спальнями- так называемая ДВУТРЕШКА - квартира с функционалом 3 комнатной. О ЖК "МОСКОВСКИЙ КВАРТАЛ": Кратко о доме: + Отличное расположение, до центра 7-10 минут на автомобиле или 4 остановки на общ.траспорте + дом полностью из керамического кирпича + толстые кирпичные стены домов в 640 мм, как в индивидуальном жилом доме + продуманные планировки квартир + комфортная высотность домов + индивидуальный дизайн входных групп + современные лифты + детские и спортивные площадки с разнообразным наполнением Дом 2 - уже четвертый по счету дом в рамках проекта ЖК Московский квартал. Строительство ведется за счет полного банковского финансирования от Сбербанка. Наши дольщики полностью защищены - продажа квартир осуществляется через эскроу-счета, а значит финансовые средства участников долевого строительства не доступны для застройщика до завершения строительства и ввода дома в эксплуатацию. + Удачное месторасположение: расположение рядом с Московским проспектом позволяет избежать траффика в узком горлышке глубже по проспекту Фрунзе и обеспечивает близость к центру города всего 4 остановки транспорта или 7-10 минут на автомобиле + Развитая инфраструктура района: детские сады, школы, детская и взрослая поликлиники, магазины - все в шаговой доступности + Правильные дома из керамического кирпича: дома комфортной высотности в 9 этажей из традиционного, долговечного и наиболее экологичного материала строительства. Толстые стены в 640 мм прекрасно держат тепло зимой и прохладу летом. Кирпич обеспечивает хороший микроклимат и оптимальную влажность в квартире, а значит здоровую атмосферу для Вас и Ваших близких. Прекрасными шумоизоляционные свойства керамики недостижимы при других, более дешевых современных технологиях домостроения, например, в монолитных или сборно-монолитных домах. + Лоджии здесь являются самостоятельными помещениями: проведя минимальные отделочные работы и установив даже самый простой вариант теплого пола, Вы получите дополнительные полезные метры в своей квартире. Здесь можно организовать приватную лаундж-зону, чтобы утром выходного дня с наслаждением выпить чашечку кофе за чтением книги, или комфортный хоум-офис, чтобы с удовольствием работать прямо из дома. А может устроить цветочную оранжерею или разместить дополнительную зону хранения? Выражайте свою индивидуальность и организуйте пространство лоджии на свой вкус! + Входные группы дома с витринным остеклением и современный внутренний дизайн холлов 1х этажей создаст эстетичное, организованное пространство для жизни, так что ощущение своего дома будет появляться прямо с порога. ГК Ярстройзаказчик - надежный застройщик, на рынке недвижимости Ярославля работает более 16 лет, и уже более 3000 семей живут в квартирах жилых комплексов, возведенных застройщиком. Каждый третий покупатель приходит к нам за покупкой квартиры повтор






















































































