


131 809 ₽/м²
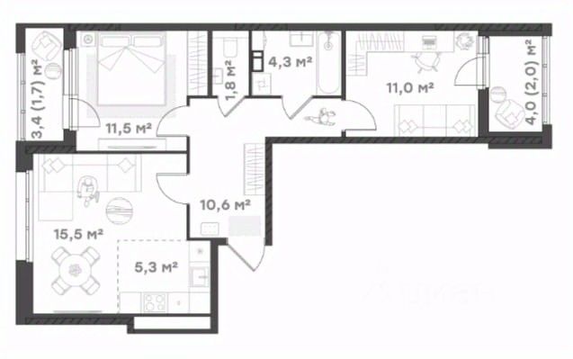
Уютная квартира для комфортной жизни, где все под рукой! Ищете функциональное и уютное пространство, где все продумано до мелочей? Эта квартира создана для вашего комфорта! Что вас ждет: • Вместительный коридор: С нишей под шкаф-купе забудьте о тесноте и беспорядке! • Компактная ванная комната: С нишей под стиральную машину все необходимое под рукой, при этом экономится пространство. • Классическая кухня: С выходом на балкон идеальное место для приготовления любимых блюд и утреннего кофе на свежем воздухе. • Уютная спальня: Правильной формы, с нишей под гардеробную создайте свой идеальный интерьер и наслаждайтесь комфортом и уютом! Эта квартира идеальный выбор для тех, кто ценит функциональность, комфорт и уют в каждом уголке!

















































































































