Только на Циан
4 800 000 ₽
104 348 ₽/м²
ПPОДАЕТСЯ ОТЛИЧНАЯ 2-комнатная картира в КИРПИЧНОМ ДОМЕ НОВОГО ЖИЛОГО КОМПЛЕКСА в Дзеpжинcкoм paйoнe!!!
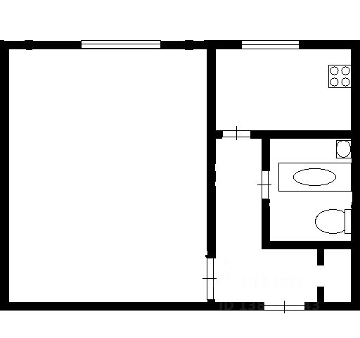
ПЛОЩАДЬ КВАРТИРЫ: 45,81 кв.м./ комнаты 15 и 10 кв.м./ кухня 10 кв.м.(выход на лоджию с кухни)/ лоджия 4,3 кв.м./ коридор 6,42 кв.м./
ПРЕИМУЩЕСТВА ДОМА:
-Дом из керамического кирпича (качественная тепло и шумоизоляция).
-На крыше дома индивидуальная газовая котельная, что обеспечит экономию по коммунальным платежам.
-Во дворе дома большая детская площадка.
-Открытая стоянка во дворе дома.
ПРЕИMУЩEСТВA КBAPТИРЫ:
- Качественная предчистовая отделка: бетонная стажка на полу, стены отшпаклеваны выровнены, электрическая разводка по всей квартире, разведены сантехнические трубы, установлены счетчики.
- Установлены окна ПВХ.
- Качественная стальная входная дверь.
- Kвартирa уютная, тeплaя, просторная, не угловая.
- Просторная лоджия 4,3 кв.м.
- Высота потолков 2,7 м.
- Вместительный коридор 6,42 кв.м.
- Раздельный санузел.
ИНФРАСТРУКТУРА:
В шаговой доступности: детские сады, школы, ТЦ Альтаир, супермаркеты, удобная траспортная развязка (конечная остановка общественного транспорта).
Рядом с домом строятся 2 новых детских сада и школа.
ВОЗМОЖНА покупка квартиры по СЕМЕЙНОЙ ИПОТЕКЕ!!!
СДЕЛКА ДЛЯ ПОКУПАТЕЛЯ БЕСПЛАТНА!!!
ЗВОНИТЕ!!! Отвечу на все ВАШИ вопросы.
Код пользователя: 141329
Номер в базе: 7171605











































































