120 000 ₽/м²
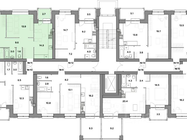
Продаётся уютная студия 29,9 кв.м в жилом комплексе Светлояр Сити. Дом располагается на пересечении важных городских магистралей пр.Машиностроителей и ул.Серго Орджоникидзе, в Заволжском районе города Ярославля. Это будет Дизайнерский дом комфорт-класса с двумя 18--ти этажными башнями терракотового цвета, увеличенными окнами, панорамным остеклением лоджий и эксплуатируемой крышей, откуда собственники квартир могут наблюдать: город, красивые рассветы и закаты над Волгой. Несущие конструкции и перекрытия монолитный железобетон, наружные стены из газосиликатного блока с эффективным наружным утеплением. Квартира-студия продается сразу с отделкой — обоями, напольным покрытием, входной и межкомнатными дверьми, с сантехникой в санузлах. Увеличенные окна сделают пространство светлым и уютным, а высокие потолки — 2,7 метра — добавят "воздуха". Просторный коридор, совмещённый санузел, просторная кухня с возможностью выхода на уютный балкон. Центральное отопление - счетчики. Идеальное расположение: рядом взрослая и детская поликлинники, детские сады, школы, спорт.школы, фитнес центр, бассейн, сбербанк, аптеки, сетевые магазины, ТЦ, рынок, парк Планируемая сдача дома 2 квартал 2026 года. СДЕЛКА ДЛЯ ВАС АБСОЛЮТНО БЕСПЛАТНА! - СТАВКА ПО ИПОТЕКЕ 4,9% ПРЕДОСТАВЛЯЕТСЯ СОВКОМБАНКОМ ДО СДАЧИ ДОМА!!! - Помощь в одобрении ипотеки(можно без первоначального взноса);Полное юридическое сопровождение сделки; - Полное юридическое сопровождение сделки; - Подбор выгодного страхования (экономия до 300 т.р.); - Быстрый выход на сделку. Федеральная компания "Этажи" - ЛИДЕР рынка недвижимости России. Количество символов: 813 Код пользователя: 156294 Номер в базе: 7073236


















































































