


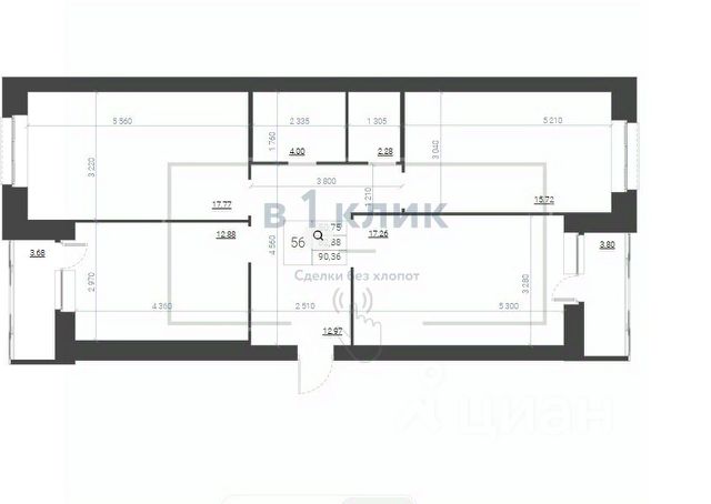
104 997 ₽/м²
2-к квартира. в Ярославле появилась уникальная застройка с необычной архитектурой! В центре Заволжского района! Вся инфраструктура в шаговой доступности, а так же есть где погулять и подышать свежим воздухом -сосновый парк. Жизнь в окружении красоты и комфорта. Кладовое помещение Большая кухня - 15,29 кв.м. 2 лоджия Вид из окон - на обе стороны дома Дом монолитно-каркасный, по контуру дома стены -керамический кирпич, межквартирные стены. Первый этаж-коммерческие помещения, с отдельными входными группами. Колясочная на 1 этаже. Благоустроенный двор с детскими и спортивными площадками. Хорошая транспортная доступность. 2 минуты пешком до проспекта Машиностроителей. Рядом остановки общественного транспорта. Индивидуальное газовое отопление. Преимущества: - Никаких скрытых рисков. - Сопровождение на всех этапах. - Помощь с одобрением ипотеки, сотрудничая с нами у вас больше шансов на ее получение с более выгодными условиями. - Экономия вашего времени и нервов в эксклюзивном подборе. - Сопровождение от нашего агентства клиенту ВСЕГДА Бесплатно. В НАШЕМ ПРОФИЛЕ ТОЛЬКО АКТУАЛЬНЫЕ ОБЪЕКТЫ ДОБАВЬТЕ ПРЕДЛОЖЕНИЕ В ИЗБРАННОЕ, ЧТОБЫ СЛЕДИТЬ ЗА АКТУАЛЬНОЙ ЦЕНОЙ И ПОЛУЧАТЬ УНИКАЛЬНЫЕ ПРЕДЛОЖЕНИЯ! А лучше не стесняйтесь, звоните, все обсудим и быстрее забронируем понравившийся объект, цену нужно успеть зафиксировать, не откладывайте.





















































































































