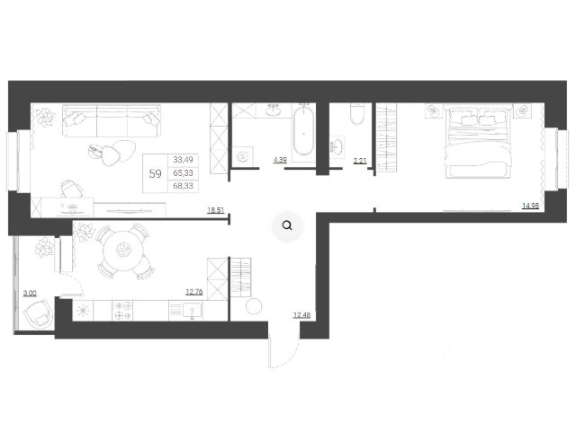
ДОМ СДАН, КЛЮЧИ В ДЕНЬ СДЕЛКИ! ПОДХОДИТ ПОД СЕМЕЙНУЮ ИПОТЕКУ. ПРОДАЖА ОТ ЗАСТРОЙЩИКА! Двухкомнатная с большой кухней-гостиной и высокими потолками, раздельным с/у. Бронирование бесплатное.
ПРЕИМУЩЕСТВА КВАРТИРЫ:
- Потолки 2,85 м, большие окна
- Кухня-гостиная 18,70 кв.м позволяет установить дополнительное спальное место, например, диван для гостей, или выделить рабочую зону
- комнаты правильной формы - легко подобрать дизайн интерьера и расставить мебель
- Раздельный санузел
- Ниши под гардеробные, французский балкон с выходом из спальни, утепленная прочная входная дверь
ЖК КОМФОРТ-КЛАССА:
Все дома сданы. Квартиры продаются в 5м строении. Есть различные планировки, в том числе с террасой, отдельным входом, дополнительным санузлом в спальне родителей, хайфлэт (высота потолков 3,15 м).
Двор полностью благоустроен: детские площадки, баскетбольное поле, теннисные столы, площадка воркаута, озеленение (газонная трава,кустарники, деревья нескольких пород).
Персональные кладовые помещения на -1м этаже (чтобы не загромождать балкон или квартиру)
Парковочные места на открытой огороженной парковке за пределами жилого массива, благодаря чему во дворе нет машин. Двор зеленый, много кустарников, деревьев, газонная трава, несколько детских площадок для разных возрастов, беседка и лавочки для отдыха взрослых, установлены спортивные тренажеры.
ЖК Сити-парк Преображение современный жилой комплекс комфорт-класса с высоким классом энергоэффективности и шумоизоляции. 4 дома комплекса уже построены и заселены. Квартиры продаются в 5м, завершающем проект, доме. Наружные стены выполнены из материала с высокой морозоустойчивостью и низкой теплоотдачей, что гарантирует тепло в домах. Фасады дома облицованы кирпичом ручной формовки долговечным и устойчивым к износу материалом (прочность сравнима с камнем). В домах полностью отсутствует газ. Действует пониженный тариф на электроэнергию. На каждом радиаторе установлена ручка для регулирования тепла в квартире. Установлены счетчики на горячую и холодную воду, на электричество.
Территория ЖК огорожена, ведется видеонаблюдение, во дворе нет машин, входные двери прозрачные - просматривается улица, когда выходите из подъезда, а когда заходите в дом - видно сам подъезд и холл.
Вход в подъезд на уровне земли без ступеней, что облегчает перенос мебели, бытовой техники, удобно для родителей с маленькими детьми - не надо поднимать коляску, а маленькие дети не запнутся о порог. Пожилым людям не придется подниматься по ступеням. Это особенно актуально в зимний период, когда образуется наледь на ступеньках и можно поскользнуться. Вход на уровне земли обеспечит безопасность и комфорт передвижения.
РЯДОМ: школы, детские сады, крупный ТЦ Аврора, фитнес-центр с бассейном, детская железная дорога, развивающие детские центры, танцевальный клуб и клуб единоборств, сосновый бор с прогулочными дорожками. Недалеко ГМ Глобус, конный клуб, детская библиотека.
Заволжский район экологичный, тихий и спокойный. За 15 минут на машине