88 583 ₽/м²
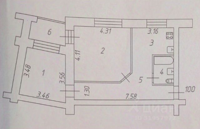
Арт. 90676025. Продается двухкомнатная квартира в новом ремонте во Фрунзенском районе г. Ярославля, расположена по адресу: ул. Ньютона, д. 42 Описание дома: Дом кирпичный, 5-ти этажный, 1971 года постройки. Входная дверь в подъезд с домофоном В доме 8 подъездов, под управлением УК "Управдом Фрунзенского района" Описание квартиры: Общая площадь 50,8 кв. м. Квартира светлая, теплая, расположена на 5 этаже, не угловая. Комнаты изолированы 17,7 кв.м. и 12,3 кв.м., окна во двор. Санузел совместный. Кухня 6 кв.м. Лоджия качественно обшита и застеклена, расположена с выходом из большой комнаты. Отопление центральное, установлены новые счетчики. Квартира после капитального ремонта с перепланировкой, все новое! Перепланировка узаконена. Подъезд чистый, после капитального ремонта. Инфраструктура: Все сетевые продуктовые магазины, аптеки, рынок на Доронина, пункты выдачи интернет заказов в шаговой доступности. Рядом остановка общественного транспорта " ул. Ньютона", салон красоты, фитнес, школа 28 и 68, детские сады 19, 57, 167, 12 и 232, в шаговой доступности парк Нефтяник и Вернисаж. До центра города 10 мин на общественном транспорте. Условия продажи: Объект недвижимости принадлежит 2 взрослым собственникам более 5 лет по договору купли-продажи. Квартира без долгов и обременений. 2-комнатная квартира на улице Ньютона в городе Ярославль.


















































































