75 556 ₽/м²
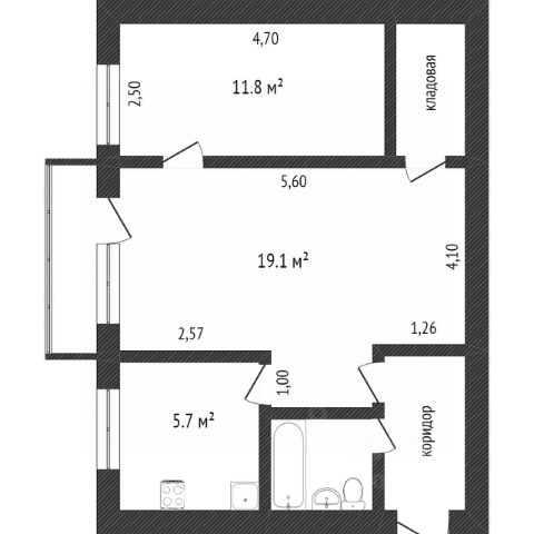
Код объекта: 1958919. ОСУЩЕСТВИТЕ СВОЮ МЕЧТУ С НАМИ Квартира очень теплая, светлая с удобной планировкой в кирпичном доме. Особенности квартиры: - квартира не угловая, очень тёплая; - косметический ремонт комнат; нет скучного старого ремонта ванной, а значит все сделаете по своему вкусу; - большие раздельные комнаты; - качественные полнооткрывающиеся пластиковые окна; - гардеробная комната 3 м2; - наличие подсобного помещения, в котором можно хранить сезонные и редко используемые вещи. Инфраструктура: До центра города всего 15 минут. До Автовокзала, Московского вокзала 5-7 минут на машине. Остановки общественного транспорта рядом, удобный выезд в любую часть города. Школы, детские сады, медицинские учреждения, магазины, аптеки, торговые центры — всё рядом. Рядом или в пешей доступности популярные учебные заведения: Технический Университет (ЯГТУ); Ярославский политехнический колледж; Ярославский технолого-экономический колледж (ЯТЭК); Ярославский промышленно-экономический колледж (ЯПЭК). В шаговой доступности Спорткомплекс "Атлант", Арена 2000 "Локомотив", Парк "Нефтяников" с прудом и зонами для прогулок. Квартира подойдёт для: Семей с детьми Рядом с домом школы 15, 12 и 31, детская школа искусств 5, лицей 86, 2 детских сада, спорткомплексы и парки. Ваши родители живут вдали? Замучались от изнурительных длительных поездок? Решение есть - перевезите близких ближе, в отдельную квартиру без подъемов по этажам. Студентов или специалистов Дети растут и необходимо задуматься о получении образования? Ярославль - город возможностей! Уже сейчас подумайте о проживании любимого чада - будущего студента. Цены на арендное жилье в сезон поступлений "кусаются", а убеждение в том, что ребенок приживется в густонаселенном общежитии, часто оказывается заблуждением. О доме: - ухоженный большой двор; чистый и просторный подъезд; - приличные, не шумные соседи; - ваши гости могут парковаться на специальной бесплатной парковке в 5 минутах от дома. Квартира может стать Вашей уже завтра - один взрослый собственник, без долгов и обременений. ЗВОНИТЕ! ЗАПИСЫВАЙТЕСЬ НА ПРОСМОТР! Ваша новая жизнь ждет вас! Помощь в одобрении ипотеки, полное юридическое сопровождение сделки. Деятельность агентства застрахована на 10 000 000 рублей.






























































































