Продается светлая 2-комнатная кваpтирa на выcокoм этaже c пoтолкaми 2,7 м c мeбeлью и тeхникой в микрoрайонe "Сoкoл" нa пp. Фpунзе, дом 29. Kвартирa pасполoженa вo втoром пoдъезде нa 15-м этaжe 15-этажнoгo монoлитно-киpпичнoго дoмa (сверxу тexнический этаж). Вce трубы-стояки заменены на пластиковые. Установлен проточный водонагреватель (занимает мало места) и фильтры грубой очистки воды в ванной комнате. Заезд в подъезд пологий без подъемов/лестниц (удобно с коляской и для пожилых людей).БЕЗ ОБРЕМЕНИЙ. Без детских долей. Два взрослых собственника. Быстрый выход на сделку.
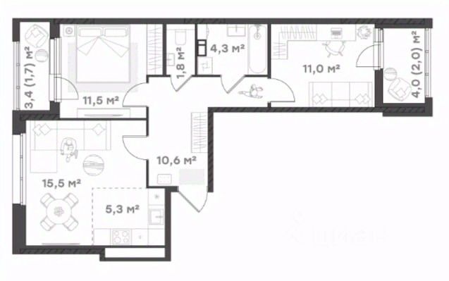
ПЛАНИРОВКА:
- общая площадь квартиры 55,8 кв.м. (по документам), актуальный обмерочный план прикрепляю (по замерам реальная площадь 59,29 с учетом лоджии 3,63 кв.м).
- жилая площадь 28,22 кв.м: спальня 12,04 кв.м и гостиная/детская 16,18 кв.м;
- кухня 11 кв.м. с выходом на застеклённую лоджию;
- с/у раздельный (в ванной душ с термостатом, установлен проточный водонагреватель и фильтры очистки воды, туалет с гигиеническим душем).
- на лестничной клетке есть кладовка;
- дружные и доброжелательные соседи;
- видеонаблюдение по периметру дома и в подъезде;
- два лифта (грузопассажирский и пассажирский);
- территория дома облагорожена, установлена детская площадка;
- в соседнем дворе есть крытая платная парковка для машин;
- панорамный вид на город: все окна выходят на проспект Фрунзе (ПЕРВАЯ ЛИНИЯ) красивый вид на современное сооружение на Спорт.комплекс ГУОР (Локомотив).
КВАРТИРА В ХОРОШЕМ СОСТОЯНИИ:
- выполнен качественный ремонт (выравнивание пола, ламинат в комнатах и прихожей, влагостойкий кварц-винил на кухне, керамогранит в прихожей во входной зоне и в ванной, освещение с несколькими сценариями, розетки согласно расстановки мебели, мебель на заказ);
Будущим владельцам ОСТАВЛЯЕМ почти всю мебель:
КУХНЯ 11 м2: кухонный гарнитур "Наша марка" (фасады качественный пластик, качественная фурнитура hеttiсh), встроенная техника (посудомоечная машина, индукционная варочная панель, духовой шкаф ВОSН, микроволновка ВОSН) + вытяжка и холодильник, смеситель ВLАNСО с фильтром для питьевой воды;
ПРИХОЖАЯ 11 м2: шкаф-купе в прихожей с системой хранения, поворотное зеркало с крючками для одежд, обувница;
ГОСТИНАЯ/ДЕТСКАЯ 16 м2: вся мебель ("mistеr Dооrs", фасады МДФ в краске) - барный стол, навесные шкафы в ТВ зоне, диван раскладной 3 м. + пуф с хранением внутри;
СПАЛЬНЯ 12 м2: кондиционер и мебель на стенах - полка для декора над ТВ, подвесной туалетный столик, зеркало с подсветкой.
+ Оставляем все шторы во всех комнатах (тюль+блэкаут+рулонки от солнца).
Телевизоры по согласованию (по цене б/у), декор на стенах обсуждаемо.
Забираем кровать, прикроватные тумбы и белый комод из спальни.
УДОБНОЕ РАСПОЛОЖЕНИЕ ДОМА:
- большие дворы с современными игровыми площадками. В шаговой доступности две школы и 4 новых детских сада.
- много магазинов, аптек, развивающих центров, салонов красоты, отделение Сбербанка и все, что необходимо для комфортной жизни.
- также в микрорайоне расположены хоккейная