


125 500 ₽/м²
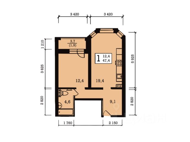
Продаётся 1-комн. квартира площадью 42,7 кв.м на 4 этаже 17 этажного дома (Корпус 2В, Секция 1) проекта ПИК Волга парк. Светлый просторный подъезд на уровне земли, функциональная планировка, большие окна, c отделкой. Жилой комплекс "Волга парк" расположен в 15 мин. езды от центра Ярославля во Фрунзенском р-не на правом берегу Волги. В проекте предусмотрено 18 жилых корпусов, две школы и 3 детских сада. Квартиры с нейтральной отделкой; подъезды с высокими потолками, панорамными окнами и двумя входами на уровне земли без ступеней и пандусов. В каждом дворе будет зелень, места для отдыха, детские и спортивные площадки. На первых этажах готовых домов открыта автошкола, мебельный и цветочный магазины, студия красоты, паб; по мере сдачи корпусов появится больше товаров и услуг. В непосредственной близости находится 4 детских сада, школа, поликлиники, торговый центр "Фреш" , фитнес-клубы. В 15 минутах ходьбы расположены крупные гипермаркеты "Лента" и Metro, а также благоустроенный парк Судостроителей. Артикул 380195 (Застройщик ООО "РУСБИЗНЕСИНВЕСТ")





































































































