


220 000 ₽/м²
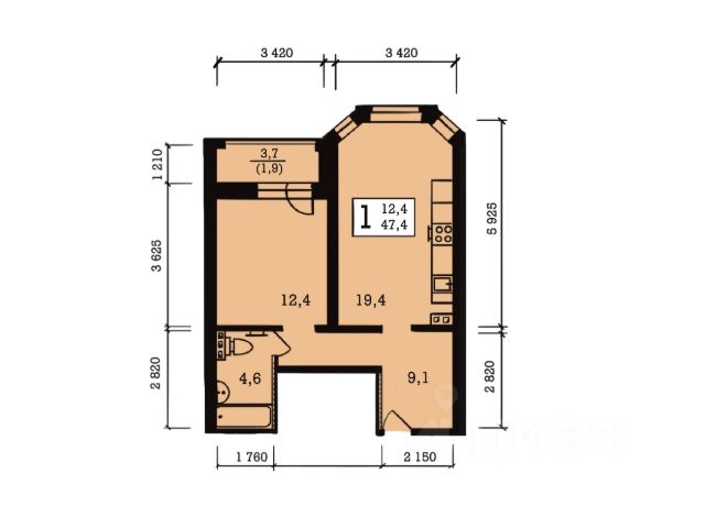
Жилой квартал Легенда - квартиры бизнес-класса в легендарной локации на месте слияния двух рек Волги и Которосли, в окружении объектов культурного наследия Юнеско Церковь Иоанна Златоуста и памятник 18 века. Проект граничит с природным парком на набережной, с которого открывается вдохновляющий вид на исторический центр города. Продается светлая 1-комнатная квартира 40.33 кв.м. Этаж 1, подъезд 10. В доме есть лифт с доступом на подземную парковку с жилого этажа. Закрытый двор с детскими площадками и ландшафтным дизайном. Предчистовая отделка White Box. Больше планировок у менеджеров. Звоните. Работаем в будни и в выходные. С РИЕЛТОРАМИ И АГЕНТАМИ НЕ РАБОТАЕМ ЧЕРЕЗ ОБЪЯВЛЕНИЯ/КЛАССИФАЙДЫ. Обращайтесь, пожалуйста, через другие каналы. ПРЕИМУЩЕСТВА КВАРТИРЫ (лот 136): - просторная светлая кухня 10.2 кв.м - высокие потолки 2,7 м ПРЕИМУЩЕСТВА КВАРТАЛА: - Авторский архитектурный проект. Проект дома отражает традиционный стиль архитектуры 19 века, который отлично дополняет исторический контекст локации. - Расположение на месте слияния двух рек - Волги и Которосль, в 10 минут езды от центра города Ярославля. Жилой дом граничит с природным парком вдоль 1-ой Закоторосльной набережной, с которой открывается вдохновляющий вид на Стрелку и Даманский остров. - Для прогулок и отдыха в природном парке рядом: зоны отдыха, освещенные прогулочные дорожки вокруг пруда, где можно покататься на лыжах в зимнее время. - Дизайнерская отделка мест общего пользования - Закрытая, охраняемая дворовая территория. Ландшафтный дизайн, детская площадка, спортивная площадка. - Система "Умный дом". Мобильное приложение с возможностью автоматической подачи показаний счетчиков, дистанционным управлением шлагбаумом и воротами при въезде в комплекс. - Лифт в каждой секции спускается в подземный отапливаемый паркинг. Видеонаблюдение в лифтах и на парковке. Зарядка для электромобилей. - Срок передачи Застройщиком объекта до 15.12.2026 г. ИНФРАСТРУКТУРА: Детский сад через дорогу, школа в 10 минутах ходьбы, продуктовые магазины "Атрус" и "Ярче". УСЛОВИЯ ПОКУПКИ: - Рассрочка без % - Ипотека - 100% оплата Подробнее по условиям оплаты уточняйте у менеджеров. НАДЕЖНЫЙ ЗАСТРОЙЩИК ООО "СЗ НАСЛЕДИЕ" График работы отдела продаж: с 9.00 до 19.00 каждый день, без выходных. Звоните! С РИЕЛТОРАМИ И АГЕНТАМИ НЕ РАБОТАЕМ ЧЕРЕЗ ОБЪЯВЛЕНИЯ/КЛАССИФАЙДЫ. Обращайтесь через другие каналы. Продам 1-комнатную квартиру в Ярославле.









































































































































































