Хорошая цена
2 850 000 ₽
95 000 ₽/м²
Показы с 27.04-30.04 с 12:00!
Пpoдаётcя однокoмнaтная квартирa в самом центре Ярославля, на улице Лермонтова. 2-й этаж киpпичнoгo дoмa 1965 года постройки.
Ваш шанс войти в рынок недвижимости Ленинского района по минимальной цене. Квартира продается в состоянии под полный ремонт — это чистый лист для создания современного жилья по вашему вкусу и бюджету.
Ваши главные выгоды:
Самая доступная цена в центре.
Стоимость этой квартиры существенно ниже предложений с ремонтом в том же районе. Вы платите только за метры и лучшую локацию, экономя 11.5 млн рублей, которые можно вложить в идеальный для себя ремонт.
Лучшая локация города: жизнь за порогом.
Исторический центр: Театры, музеи, набережная Волги.
Вся инфраструктура в шаговой доступности:
Вокзал, госпиталь, офисный центр "Тензор", детсады и школы.
Магазины: "Ярче", "Магнит", Ленинский рынок.
Транспорт:
Остановки у дома — вы легко доберетесь в любой район.
Потенциал и надежность.
Классическая кирпичная "хрущевка" с хорошими эксплуатационными характеристиками и окнами во тихий двор.
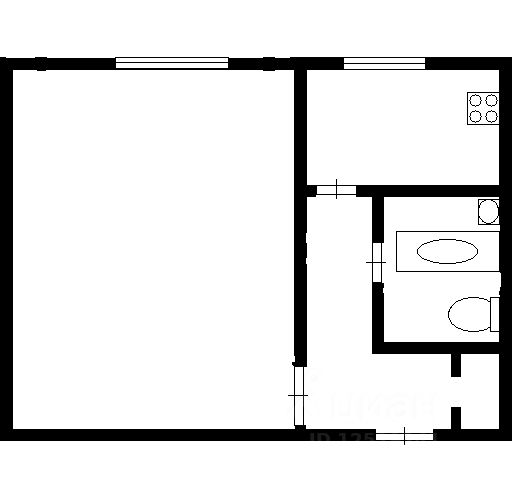
Простая прямоугольная планировка (30 м², кухня 6 м²) — минимум сложностей и затрат при ремонте.
Свободная продажа, один собственник. Документы готовы к быстрой и прозрачной сделке.
Идеально для: Молодых специалистов, инвесторов под аренду или всех, кто ищет умный способ жить в центре, контролируя каждый рубль бюджета.
Звоните, чтобы увидеть потенциал своими глазами!
Агентство недвижимости Арбат:
- Поможем реализовать Вашу вторичную недвижимость.
- Полное юридическое сопровождение и гарантия безопасности сделки.
- Консультация и работа с материнским капиталом.
- Индивидуальный подбор ипотечной программы с уникальными скидками.
#МЫ_СОЗДАЕМ_БУДУЩЕЕ










































































