Мы используем куки-файлы. Соглашение об использовании
Только на Циан
Общая площадь124,7 м²
Участок8 сот.
Материал домаГазобетонный блок
Этажей в доме2
Год постройки2015
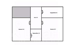
Уютный дом в Заволжском районе Ярославля — ваш идеальный выбор для жизни! Предлагается к продаже просторный и тёплый дом, построенный с заботой о комфорте и уюте вашей семьи. Здесь всё продумано до мелочей: от фундамента до последних деталей интерьера. Основные характеристики: - Материал стен: газоблок — экологично, тепло и долговечно. - Фундамент: монолитная бетонная плита — надёжная основа для дома. - Крыша: односкатная, современная и практичная. - Площадь участка: 8 соток с садовыми насаждениями, осушен, по периметру — забор с двумя калитками и откатными воротами. - Соседи: постоянные жители, тихий и спокойный район, без "дачников". Планировка дома: Первый этаж: - Просторная кухня-гостиная (ремонт 2025 года: виниловые обои, натяжной потолок). - Большая спальня. - Ванная комната (кафель). Второй этаж: - Две уютные спальни. - Две гардеробные для удобного хранения вещей. Комфорт и уют: - Газовое отопление: котёл Vaillant, большие радиаторы, тёплый пол (от газа) — дом очень тёплый даже в морозы. - В доме: ламинат, натяжные потолки, флизелиновые обои, ламинированные двери. - В котельной и прихожей — моющаяся краска Tikkurila. - Септик Юнилос Астра 10 (рассчитан на большую семью, до 10 человек). - Своя скважина (28 метров). Террасы для отдыха: - Открытая деревянная терраса — для летних вечеров и встреч с друзьями. - Закрытая терраса на бетонной плите — для уютных зимних посиделок. Локация — мечта для семьи: - 690 метров до остановки (5 минут пешком): автобусы 12, 22, 58, 124к, 124, 119. - До центра города (Октябрьская площадь) — 10 минут на транспорте. - В пешей доступности — магазины, аптеки, школы, кружки. - Доставка из всех сетевых магазинов: Магнит, Пятёрочка, Лента, Fix Price и др. - До пляжа и Волги — неспешная 15-минутная прогулка. Дополнительные плюсы: - Прописка в городе Ярославль. - Возможность увеличить участок, если 8 соток будет мало. Этот дом — не просто жильё, а место, где будет комфортно всей семье: детям удобно добираться до школы и секций, взрослым — жить без машины, а природа и тишина подарят настоящее ощущение загородной жизни в черте города. Код пользователя: 204490 Номер в базе: 12541129
Позвоните автору
Вам ответят на все вопросы

О доме

Площадь

124,7 м²

Материал дома

Газобетонный блок

Количество этажей

2

Количество спален

3

Год постройки

2015

Об участке

Площадь

8 сот.

Категория земель

Земли населённых пунктов

Статус участка

Индивидуальное жилищное строительство

Коммуникации и удобства

Канализация

Септик

Водоснабжение

Скважина

Электричество

Есть

Газ

Магистральный в доме или на участке

Спросите умного помощника
Получите экспертное мнение о жилье

Расположение

Подпишитесь на объявления в этой локации
Мы сообщим, как только поблизости появится что‑нибудь новенькое
Ипотечный калькулятор
  • Базовая
  • Семейная
  • ИТ-ипотека
  • 20%
  • 30%
  • 40%
  • 50%
лет
  • 10 лет
  • 20 лет
  • 30 лет
Загружаем предложения от застройщика и банков
Хотите продать недвижимость?Разместите объявление на ЦианРазместить
10 500 000 ₽
Цена за метр
84 202 ₽/м²
Агентство недвижимости
Документы проверены
На Циан
8 лет
Объектов в работе
более 3000