Агентство недвижимости
Документы проверены
Тип жилья
Вторичка
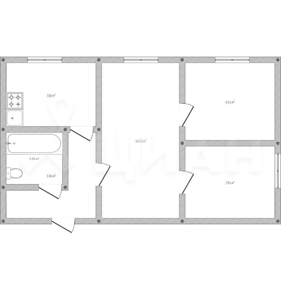
Общая площадь
44,4 м²
Жилая площадь
28,4 м²
Площадь кухни
6 м²
Высота потолков
2,5 м
Санузел
1 раздельный
Вид из окон
Во двор
Ремонт
Без ремонта
Продаётся с мебелью
Да
Год постройки
1979
Строительная серия
1-447
Количество лифтов
1 пассажирский
Тип дома
Кирпичный
Тип перекрытий
Нет информации
Подъезды
4
Парковка
Наземная
Отопление
Центральное
Аварийность
Нет
Газоснабжение
Центральное
