Мы используем куки-файлы. Соглашение об использовании
Только на Циан

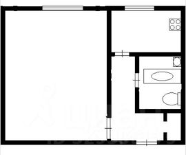
Просторная однокомнатная квартира

Общая площадь30,6 м²
Жилая площадь17,5 м²
Площадь кухни5,5 м²
Этаж1 из 5
Год постройки1974
Продается уютная однокомнатная квартира в Ярославле по адресу: проспект Дзержинского, д. 7. Общая площадь — 30.6 кв. м, жилая площадь — 17.5 кв. м. Квартира находится на первом этаже пятиэтажного панельного дома, построенного в 1974 году. Высота потолков — 2.5 метра, что создает ощущение простора. Дом после капитального ремонта, отличное состояние общедомового имущества, установлены современные пластиковые окна в подъездах, заменены электропроводка, инженерные коммуникации, лежаки отопления и водоснабжения в подвале, выполнен капитальный ремонт межпанельных швов и кровли. В квартире сделан качественный ремонт с использованием материалов премиум сегмента, что позволит вам сразу же заехать и наслаждаться комфортом. Полностью заменены полы от основания до финишного покрытия, установлены современные радиаторы с терморегулятором, что позволяет настраивать температуру по своему комфорту. В коридоре и кухне качественный керамогранит на полу. Совмещенный санузел отвечает современным стандартам и оборудован всем необходимым. Установлены современные пластиковые окна, которые выходят на улицу. Квартира очень тёплая и уютная. Дом находится в хорошем состоянии, а рядом с ним расположена наземная парковка — вам не придется беспокоиться о месте для автомобиля. В шаговой доступности находятся школы, детские сады, клиники и магазины, что делает это место идеальным для семейного проживания. Отличная транспортная доступность: рядом остановки общественного транспорта, откуда можно быстро добраться в любую часть города. Квартира продается без посредников, что упрощает процесс сделки. Все документы готовы к продаже, юридически чистая квартира без обременений. Один взрослый собственник. Записывайтесь на просмотр, чтобы оценить все преимущества этой квартиры лично. Мы с радостью покажем вам будущее место для жизни, где вы сможете создать свой уютный мир.
Позвоните автору
Вам ответят на все вопросы

О квартире

Тип жилья

Вторичка

Общая площадь

30,6 м²

Жилая площадь

17,5 м²

Площадь кухни

5,5 м²

Высота потолков

2,5 м

Санузел

1 совмещенный

Ремонт

Евроремонт

О доме

Год постройки

1974

Строительная серия

1-464

Тип дома

Монолитный

Тип перекрытий

Железобетонные

Подъезды

6

Парковка

Наземная

Отопление

Центральное

Аварийность

Нет

Газоснабжение

Центральное

Спросите умного помощника
Получите экспертное мнение о жилье

Расположение

Ипотечный калькулятор
  • Базовая
  • Семейная
  • ИТ-ипотека
  • 20%
  • 30%
  • 40%
  • 50%
лет
  • 10 лет
  • 20 лет
  • 30 лет
Загружаем предложения от застройщика и банков
Зимой будет тепло
Дома такой же серии обычно хорошо сохраняют тепло
8
Помощь риелтора
Проверенный риелтор поможет купить или продать квартиру
СобственникID 23149196
  • Предоставил паспорт
3 200 000 ₽
Цена за метр
104 575 ₽/м²
Условия сделки
свободная продажа
Ипотека
возможна
СобственникID 23149196
  • Предоставил паспорт