Мы используем куки-файлы. Соглашение об использовании
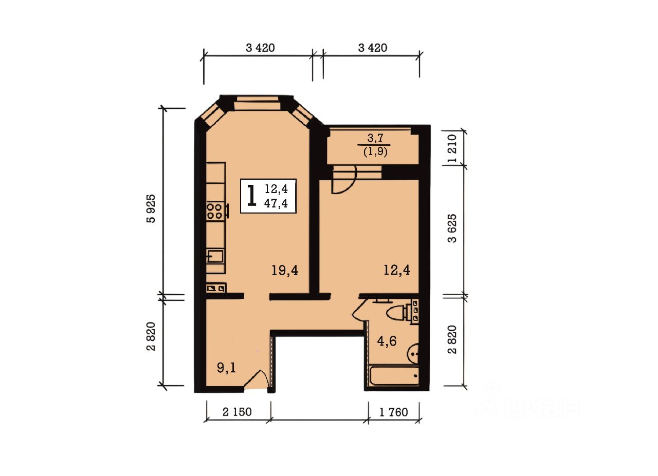
Общая площадь47,4 м²
Жилая площадь19,6 м²
Этаж10 из 10
Год сдачи2028
ДомНе сдан
ОтделкаНет информации
Продаётся 1-комнатная квартира в строящемся доме (Строение 3), срок сдачи: III-кв. 2028, общей площадью 47.4 кв.м., на 10 этаже. ЖК "Пёстрый квартал" расположен в новом, стремительно развивающемся микрорайоне "Сокол" с хорошей транспортной и развитой социальной инфраструктурой в 5-минутной пешей доступности от проспекта Фрунзе. В пешей доступности находятся: 4 детских сада, 1 школа, супермаркеты "Адмирал" и "Пятерочка", ТЦ "Фреш", гипермаркет "Metro Cash and Carry", ТД "Аксон", ресторан быстрого питания "Вкусно и точка", многофункциональный спортивный комплекс "Локомотив" со стадионом, Храм Благоверного Великого князя Ярослава Мудрого. Кроме этого, в 5-минутной транспортной доступности: 1 школа, 2 детских сада, детская поликлиника, гипермаркет "Лента", отделение "Сбера", отделение "Почта России", аквапарк "Тропический остров", парк "Судостроителей" и прочее. ЖК "Пёстрый квартал" расположен между двумя остановками общественного транспорта на проспекте Фрунзе: "Поселок Сокол" (около 400 м от ЖК) и "Чернопрудая" (около 700 м от ЖК).

О квартире

Тип жилья

Новостройка

Общая площадь

47,4 м²

Жилая площадь

19,6 м²

Высота потолков

2,64 м

Отделка

Нет информации

О доме

Тип дома

Кирпичный

Пандус

Есть

Понравилась квартира — узнайте о ней больше

Застройщик ответит на все вопросы

Отделка в ЖК

  • Предчистовая

О ЖК «Пёстрый квартал»

  • Сдача комплекса
    Сдача в 2026—2028, есть сданные
  • Застройщик
    ЖилСтройСити
  • Класс
    Комфорт
  • Тип дома
    Кирпичный
  • Парковка
    Гостевая
  • Отделка
    Предчистовая
  • Тип комплекса
    Жилой комплекс
  • Брошюра ЖК
Похоже на то, что вы ищете?

Особенности жилого комплекса

  • Внутренний двор

  • Архитектура

Подробнее о жилом комплексе

Акции в ЖК «Пёстрый квартал»

Узнайте про персональные условия и дополнительные скидки при покупке квартиры у застройщика

Материнский капитал

Ипотечный калькулятор
  • Базовая
  • Семейная
  • ИТ-ипотека
  • 20%
  • 30%
  • 40%
  • 50%
лет
  • 10 лет
  • 20 лет
  • 30 лет
Загружаем предложения от застройщика и банков

Расположение

Корпус проверен наш.дом.рф
Обновлено 12 мая 2026
  • Нет в реестре проблемных объектов
  • Застройщик не банкрот
  • Есть эскроу счёт
  • Актуальные фото стройки

Ещё квартиры в жилом комплексе

98 квартир в продаже · Сдача в 2026—2028, есть сданные
Автор объявления

Застройщик «ЖилСтройСити»

Надежный застройщик
Строительство жилых комплексов осуществляется двумя предприятиями: ООО СЗ «ЖилСтройСити». Компания выступает Застройщиком, Заказчиком, Инвестором и Риэлтором. ООО ПСФ «СитиСтрой». Компания является Генпроектировщиком и Генподрядчиком. Оба предприятия плот...
4 844 280 ₽
Цена за метр
102 200 ₽/м²
Условия сделки
долевое участие (214-ФЗ)