Мы используем куки-файлы. Соглашение об использовании
Только на Циан
  • Если понравилась квартира,
    позвоните застройщику
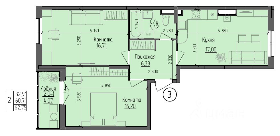
Общая площадь62,75 м²
Этаж1 из 9
Год сдачи2027
ДомНе сдан
ОтделкаС отделкой
Продаётся 2-комнатная квартира в строящемся доме (Дом 20), срок сдачи: III-кв. 2027, общей площадью 62.75 кв.м., на 1 этаже. Клубный дом "Атлас". Сдача 3 кв.2027г. Цена указана за квартиру в предчистовой отделке. Возможна покупка квартиры в чистовой отделке с включением её стоимости в кредитный договор. Предчистовая отделка: -полусухая стяжка полов, -оштукатуренные стены, -2-Х КОНТУРНЫЙ ГАЗОВЫЙ КОТЕЛ, -КАЧЕСТВЕННАЯ ВХОДНАЯ МЕТАЛЛИЧЕСКАЯ ДВЕРЬ, -электропроводка, розетки, радиаторы, -ПОЛОТЕНЦЕСУШИТЛЬ, -остекление балконов и лоджий. Чистовая отделка: -на полу: в комнатах и кухне ламинат, в сан.узле - керамогранит, -на стенах: в комнатах и кухне флизелиновые обои под покраску, в сан.узле - керамическая плитка, -из сантехники: смесители, ванна, раковина, унитаз. Дом ВЫСОКОГО КЛАССА ЭНЕРГОЭФФЕКТИВНОСТИ, что дает Вам повышенный уровень телпло- и шумоизоляции. Фасад комбинированный по технологии "шуба+" из облицовочного керамогранита и высококачественной декоративной штукатурки разных цветов. Единое остекление лоджий и заранее установленные КОРЗИНЫ ДЛЯ КОНДИЦИОНЕРОВ! В доме будет внедрена технология "УМНЫЙ ДОМ": - Входная дверь будет дополнительно оснащена ЗАМКОМ БЕЗКЛЮЧЕВОГО ДОСТУПА; - ДИСТАНЦИОННОЕ УПРАВЛЕНИЕ СИСТЕМОЙ ОТОПЛЕНИЯ; - Счетчики воды и электроэнергии автоматически будут СОБИРАТЬ И ОТПРАВЛЯТЬ ДАННЫЕ в систему учета; - Видеонаблюдение на территории комплекса; - Интеллектуальная система домофона при входе в подъезд. КОМФОРТ ДЛЯ ЖИТЕЛЕЙ: - Дизайнерская отделка холлов; - Отдельные зоны колясочных и лапомоек; - Благоустроенная придомовая территория с современными детской и спортивной площадками, зоной парковки авто. ИНФРАСТРУКТУРА: - Детский сад и школа буквально в соседнем дворе; - Остановка общественного транспорта в 5ти минутах ходьбы; - Рядом находится большой благоустроенный парк, Аквапарк, кафе, рестораны, супермаркеты, Государственное Училище Олимпийского Резерва.

О квартире

Тип жилья

Новостройка

Общая площадь

62,75 м²

Высота потолков

2,7 м

Отделка

С отделкой

О доме

Количество лифтов

2 грузовых

Тип дома

Монолитно-кирпичный

Понравилась квартира — узнайте о ней больше

Застройщик ответит на все вопросы

Отделка в ЖК

  • Чистовая
  • Предчистовая
Похоже на то, что вы ищете?

Акции в ЖК «Клубный дом «АТЛАС»

Узнайте про персональные условия и дополнительные скидки при покупке квартиры у застройщика
Ипотечный калькулятор
  • Базовая
  • Семейная
  • ИТ-ипотека
  • 20%
  • 30%
  • 40%
  • 50%
лет
  • 10 лет
  • 20 лет
  • 30 лет
Загружаем предложения от застройщика и банков

Расположение

Корпус проверен наш.дом.рф
Обновлено 30 апреля 2026
  • Нет в реестре проблемных объектов
  • Застройщик не банкрот
  • Есть эскроу счёт
  • Актуальные фото стройки

Ещё квартиры в жилом комплексе

106 квартир в продаже · Сдача в 3 кв. 2027
Агентство недвижимости
Fortis Team
  • 2 года 3 месяца на Циане
  • 6 588 750 ₽
    Цена за метр
    105 000 ₽/м²
    Условия сделки
    долевое участие (214-ФЗ)
    Агентство недвижимости
    Fortis Team