Мы используем куки-файлы. Соглашение об использовании

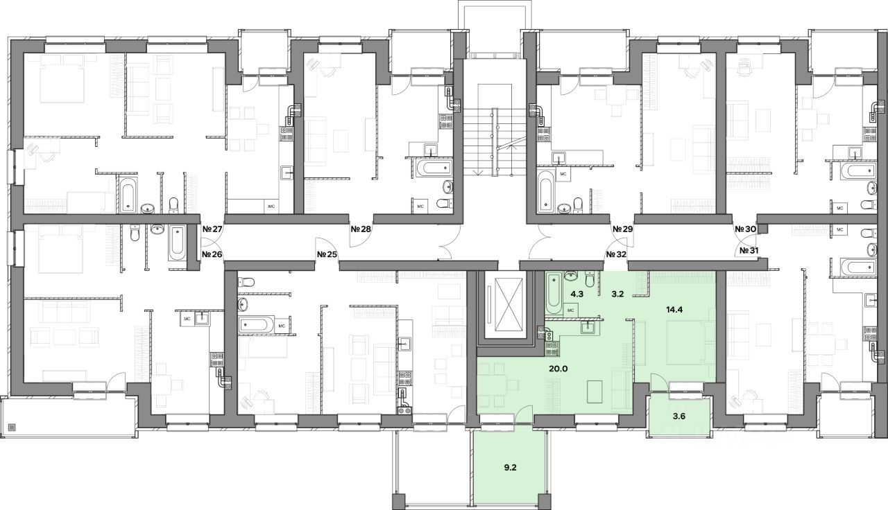
Продается 1-комн. квартира, 54,7 м²

Общая площадь54,7 м²
Жилая площадь14,4 м²
Площадь кухни20 м²
Этаж4 из 4
Год сдачи2024
ДомСдан
ОтделкаПредчистовая
Жилой квартал "Ботаника" —это современный малоэтажный эко-квартал в Ярославле. Жизнь в "Ботанике" — это виды на озеро и пробежки в сосновом бору, всего 7 минут до культурного центра города, современные кирпичные малоэтажные дома, большая приватная территория с детскими площадками и прогулочными зонами, свежий воздух и собственная развивающаяся инфраструктура. Несмотря на малую этажность, наши дома оснащены современными бесшумными лифтами. Входные группы — это просторные светлые пространства с панорамным остеклением и безбарьерной средой. Здесь эстетика гармонично сочетается с заботой о резидентах. Все квартиры создаются с соблюдением принципов эргономики, что позволяет реализовать разные жизненные сценарии. Мы предлагаем широкий выбор планировок: от уютных евро-однушек до двухуровневых лотов с личным выходом на крышу. В каждой квартире предусмотрена система индивидуального отопления. Вы можете приобрести квартиру как с предчистовой или чистовой отделкой, так и с полной меблировкой. Детский сад находится всего в 6 минутах езды от квартала, школа — в 9 минутах. Также проектом предусмотрены собственная школа на 1000 мест и два детских сада, которые будут построены прямо на территории "Ботаники". Квартира 32

О квартире

Тип жилья

Новостройка

Общая площадь

54,7 м²

Жилая площадь

14,4 м²

Площадь кухни

20 м²

Высота потолков

3 м

Санузел

1 совмещенный

Отделка

Предчистовая

О доме

Тип дома

Кирпичный

Пандус

Есть

Понравилась квартира — узнайте о ней больше

Застройщик ответит на все вопросы

Отделка квартиры

Предчистовая — остаётся установить сантехнику, розетки, двери и навести красоту: поклеить обои и уложить на пол покрытие

О ЖК «Ботаника»

  • Сдача комплекса
    Сдача в 4 кв. 2026, есть сданные
  • Застройщик
    Луч (Ярославль)
  • Класс
    Бизнес
  • Тип дома
    Кирпичный
  • Парковка
    Гостевая
  • Отделка
    Предчистовая
  • Тип комплекса
    Жилой комплекс
Похоже на то, что вы ищете?

Особенности жилого комплекса

  • Парковка

  • Внутренний двор

  • Архитектура

  • Входная группа

Подробнее о жилом комплексе

Акции в ЖК «Ботаника»

Узнайте про персональные условия и дополнительные скидки при покупке квартиры у застройщика

Материнский капитал

Ипотечный калькулятор
  • Базовая
  • Семейная
  • ИТ-ипотека
  • 20%
  • 30%
  • 40%
  • 50%
лет
  • 10 лет
  • 20 лет
  • 30 лет
Загружаем предложения от застройщика и банков

Расположение

Корпус проверен наш.дом.рф
Обновлено 4 июля 2025
  • Нет в реестре проблемных объектов
  • Застройщик не банкрот

Ещё квартиры в жилом комплексе

61 квартира в продаже · Сдача в 4 кв. 2026, есть сданные
Автор объявления

Застройщик «Луч (Ярославль)»

Общество с ограниченной ответственностью «Луч».
7 742 000 ₽
Цена за метр
141 536 ₽/м²
Условия сделки
свободная продажа