Мы используем куки-файлы. Соглашение об использовании
Площадь730 м²
Этажность2
КлассC
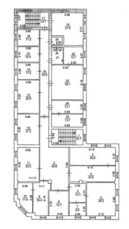
Продаются нежилые помещения общей площадью 750 кв.м. расположенные в двухэтажном кирпичном здании 1996 года постройки. Административное здание расположено по адресу: Ярославская область, пос. Борисоглебский, ул.Транспортная, д.3 Помещения первого этажа - 41,1 кв.м. (теплоузел, входная группа, электрощитовая), 246,5 кв.м. (сданы в аренду ПАО "Сбербанк", страховой компании) Помещения второго этажа - 443,3 кв.м. (частично сданы в аренду) Гараж общей площадью - 22,9 кв.м. (не используется) Здание кирпичное, на железобетонном фундаменте, перекрытия - бетонные, кровля - железная, оконные проемы - ПВХ и деревянные. Отопление - автономное от газового котла. Водоснабжение - центральное. Канализация - местная. Электрическая мощность - 90 кВт. Рассмотрим варианты обмена. На дополнительные вопросы отвечу по телефону.
lock

Войдите или зарегистрируйтесь
для просмотра информации

Просматривайте условия сделки и всю информацию об объекте
Сохраняйте фильтры в поиске и не вводите заново
Доступ к избранному с любого устройства
Неограниченное добавление в избранное
Позвоните автору
Вам ответят на все вопросы
Остались вопросы по объявлению?
Позвоните владельцу объявления и уточните необходимую информацию.
  • Инфраструктура
  • Похожие рядом
Естественная вентиляция
Автономное отопление
Сигнализация
Помощь надёжных риелторов
Риелтор партнёр Циан поможет купить или продать любую недвижимость
Автор объявленияМихаил Новиков
Суперагент
  • 12 лет 10 месяцев на Циане
  • 1 объявление
  • 7 900 000 ₽
    106 332 $
    89 217
    Цена за метр
    10 822 ₽
    Налог
    УСН
    Автор объявленияМихаил Новиков
    Суперагент