Мы используем куки-файлы. Соглашение об использовании
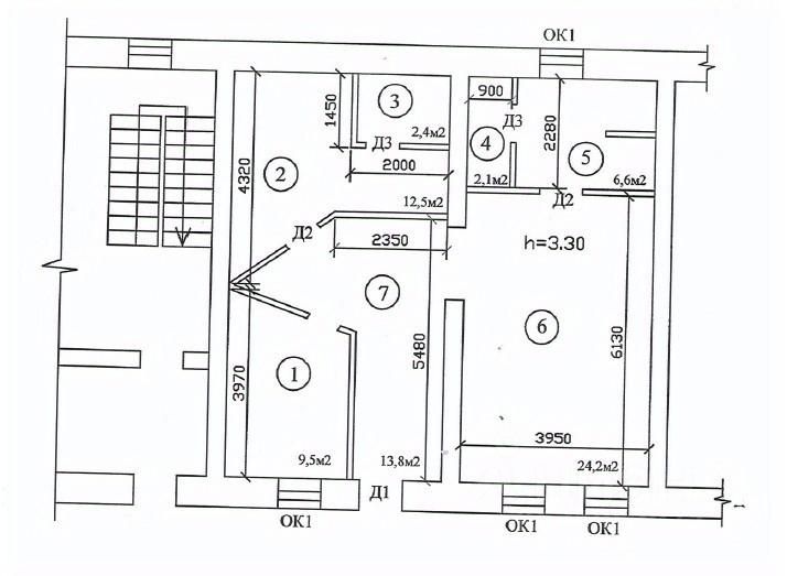
Помещение свободного назначения, 71,1 м²

Продается помещение свободного назначения, 71,1 м²

Площадь71,1 м²
Этаж1 из 3
Арт. 90580395. ГК Метро предлагает помещение свободного назначения с отдельным входом и закрытой территорией в самом центре города Ярославля. Два собственника. - Отдельный вход - Закрытая территория (возможен въезд на территорию для арендатора) - Санузел + выведенная дополнительно мокрая точка - Кондиционирвоание (сплит) - Высокие потолки 3, 3м - Выделено 2 больших кабинета и 2 небольших помещения (комната приема пищи, гардероб, либо так же мини кабинет) Может стать отличным офисом, учебным учреждением либо бьюти салоном. ГК "Метро" - лидер рынка коммерческой недвижимости Ярославля. У нас самый большой портфель недвижимости и наибольшая выгрузка рекламы на отраслевых площадках. ------------------------------------------------- ------------- 1. Больше информации по телефону и в форме чата. 2. По запросу предоставим расширенный пакет фотографий, поэтажные планы и техническую документацию. 3. Для иногородних клиентов оперативно покажем объект по видеосвязи. 4. Приглашаем посредников к сотрудничеству на выгодных условиях. 5. Если этот объект не понравился по фотографиям и описанию - обращайтесь, предложим альтернативу. 6. Фиксируем звонки в режиме 24/7, для Вашего удобства работает контакт-центр.
lock

Войдите или зарегистрируйтесь
для просмотра информации

Просматривайте условия сделки и всю информацию об объекте
Сохраняйте фильтры в поиске и не вводите заново
Доступ к избранному с любого устройства
Неограниченное добавление в избранное
Позвоните автору
Вам ответят на все вопросы
Остались вопросы по объявлению?
Позвоните владельцу объявления и уточните необходимую информацию.
  • Инфраструктура
  • Похожие рядом
  • Тип зданияЖилой дом
  • Общая площадь71,1 м²
Помощь надёжных риелторов
Риелтор партнёр Циан поможет купить или продать любую недвижимость
14 000 000 ₽
189 734 $
160 222
Цена за метр
196 906 ₽
Налог
НДС включен: 2 524 590 ₽
Агентство недвижимости
Документы проверены