Мы используем куки-файлы. Соглашение об использовании
Площадь700 м²
Этаж1 из 5
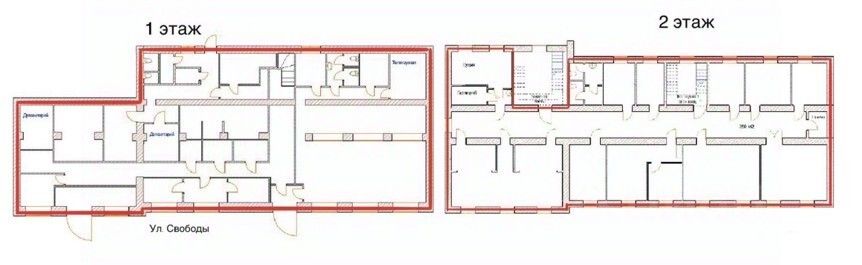
Арт. 92406713. Предлагается к аренде коммерческое помещение с витринной группой на ул. Свободы! Можно арендовать вместе со вторым этажом! Траффиковая улица, исторический центр, объект культурного наследия. Характеристики помещения: - Первый и второй этажи по 350 м кв. - Отдельные входные группы с ул. Свободы. - Высота потолков: 3, 4 м (до подвесного, там запас). - Электрическая мощность: 90 кВт (будет 150 кВт). Планировка и доступ: - Две входные группы с улицы Свободы. - Запасной и пожарный выходы на внутреннюю территорию. Инфраструктура: - Центральное водоснабжение (холодная вода). - Горячая вода через бойлеры в санузлах. - Собственный теплоузел для экономии на отоплении. Оснащение: - Пожарное оборудование, сигнализация, СКУД. - Освещение. - Частичная система видеонаблюдения. - Система кондиционирования и вентиляции (кондиционер в каждом кабинете). - Качественный базовый ремонт (ранее использовалось как банк). На внутренней территории имеется парковка (платная). #АРЕНДА ------------------------------------------------- ------------- Без комиссии, аренда от собственника! ------------------------------------------------- ------------- ГК "Метро" - лидер рынка коммерческой недвижимости Ярославля. У нас самый большой портфель недвижимости и наибольшая выгрузка рекламы на отраслевых площадках. ------------------------------------------------- ------------- 1. Больше информации по телефону и в форме чата. 2. По запросу предоставим расширенный пакет фотографий, поэтажные планы и техническую документацию. 3. Для иногородних клиентов оперативно покажем объект по видеосвязи. 4. Приглашаем посредников к сотрудничеству на выгодных условиях. 5. Если этот объект не понравился по фотографиям и описанию - обращайтесь, предложим альтернативу. 6. Фиксируем звонки в режиме 24/7, для Вашего удобства работает контакт-центр.
lock

Войдите или зарегистрируйтесь
для просмотра информации

Просматривайте условия сделки и всю информацию об объекте
Сохраняйте фильтры в поиске и не вводите заново
Доступ к избранному с любого устройства
Неограниченное добавление в избранное
Позвоните автору
Вам ответят на все вопросы
Остались вопросы по объявлению?
Позвоните владельцу объявления и уточните необходимую информацию.
  • Инфраструктура
  • Похожие рядом
  • Тип зданияБизнес-центр
  • Общая площадь700 м²
Помощь надёжных риелторов
Риелтор партнёр Циан поможет купить или продать любую недвижимость
1 050 000 ₽/мес.
14 358 $/мес.
12 326 /мес.
Цена за метр
18 000 ₽ в год
Налог
НДС включен: 189 344 ₽
Комиссия
нет
Коммунальные платежи
не включены
Эксплуатационные расходы
не включены
Агентство недвижимости
Документы проверены