Мы используем куки-файлы. Соглашение об использовании
Площадь562 м²
Этажность1
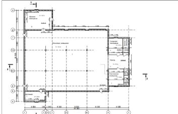
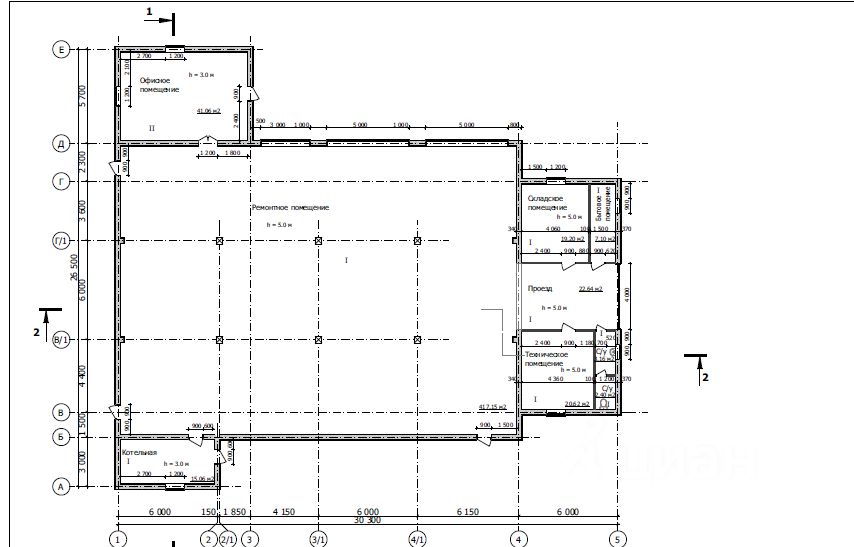
Арт. 92094328. Предлагаем в аренду здание, площадью 561, 7 кв. м. , расположенное по адресу: г. Ярославль, ул. Громова, локация Суринского моста со стороны Холодмаша Здание введено в эксплуатацию с февраля 2026г. Одни высокие въездные ворота. Внутри организованы подсобные помещения. Заезд как от Суринского моста, так и с ул. Громова. Отопление - газ. котел (сейчас временно электрокотел), вода - скважина, канализация - септик. Отличительные особенности: 1линия расположения, хорошая видимость с автодороги. Своя парковочная зона у здания. Помещение в черновой отделке, готовность со стороны собсвтенника доделать площадь ------------------------------------------------- ------------- Без комиссии, аренда от собственника! ------------------------------------------------- ------------- ГК "Метро" - лидер рынка коммерческой недвижимости Ярославля. У нас самый большой портфель недвижимости и наибольшая выгрузка рекламы на отраслевых площадках. ------------------------------------------------- ------------- 1. Больше информации по телефону и в форме чата. 2. По запросу предоставим расширенный пакет фотографий, поэтажные планы и техническую документацию. 3. Для иногородних клиентов оперативно покажем объект по видеосвязи. 4. Приглашаем посредников к сотрудничеству на выгодных условиях. 5. Если этот объект не понравился по фотографиям и описанию - обращайтесь, предложим альтернативу. 6. Фиксируем звонки в режиме 24/7, для Вашего удобства работает контакт-центр.
lock

Войдите или зарегистрируйтесь
для просмотра информации

Просматривайте условия сделки и всю информацию об объекте
Сохраняйте фильтры в поиске и не вводите заново
Доступ к избранному с любого устройства
Неограниченное добавление в избранное
Позвоните автору
Вам ответят на все вопросы
Остались вопросы по объявлению?
Позвоните владельцу объявления и уточните необходимую информацию.
  • Инфраструктура
  • Похожие рядом
Помощь надёжных риелторов
Риелтор партнёр Циан поможет купить или продать любую недвижимость
350 000 ₽/мес.
4 743 $/мес.
4 006 /мес.
Цена за метр
7 474 ₽ в год
Налог
НДС включен: 63 114 ₽
Комиссия
нет
Коммунальные платежи
не включены
Эксплуатационные расходы
не включены
Агентство недвижимости
Документы проверены