Мы используем куки-файлы. Соглашение об использовании
Помещение свободного назначения, 251,3 м²

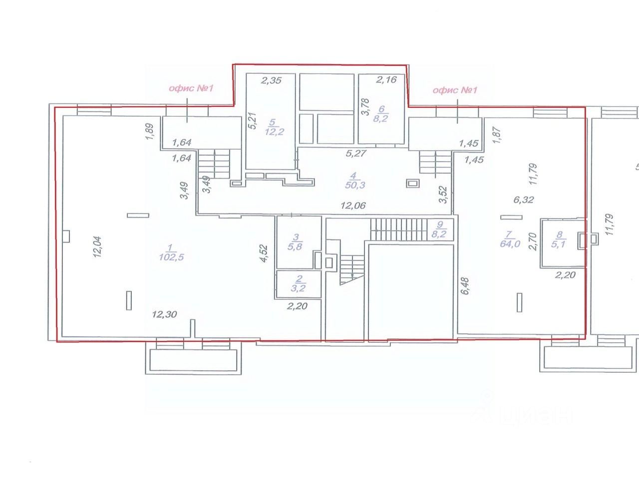
Сдается помещение свободного назначения, 251,3 м²

Площадь251,3 м²
Этаж1 из 1
Предлагается в аренду помещение от собственника общей площадью 251,3 кв.м. Планировка свободная. Состояние помещения - shell&core. Назначение - свободное. Высота потолков - 3 м. Цокольный этаж. Отдельный вход. Отлично подходит для размещения street retail, салона красоты. "Династия" это самый стильный жилой комплекс Ярославля. В проекте совмещены новый уровень качества жизни и прекрасная архитектура, заслуженно признанная классической. Архитектурный облик комплекса органично и целостно вписался в экстерьер городского центра, дополнив его собственной инфраструктурой. Инфраструктура представлена полным спектром услуг для арендаторов и их посетителей: кафе, столовые, аптеки, развлечения. Отдельно оплачиваются коммунальные платежи, Арендная ставка включает НДС. Предоставляются арендные каникулы. Лот 000004426
lock

Войдите или зарегистрируйтесь
для просмотра информации

Просматривайте условия сделки и всю информацию об объекте
Сохраняйте фильтры в поиске и не вводите заново
Доступ к избранному с любого устройства
Неограниченное добавление в избранное
Позвоните автору
Вам ответят на все вопросы
Остались вопросы по объявлению?
Позвоните владельцу объявления и уточните необходимую информацию.
  • Инфраструктура
  • Похожие рядом
  • Тип зданияЖилой комплекс
  • Общая площадь251,3 м²
Помощь надёжных риелторов
Риелтор партнёр Циан поможет купить или продать любую недвижимость
Управляющая компанияПрофис-недвижимость
Суперагент
  • 14 лет 9 месяцев на Циане
  • 280 объявлений
  • 125 650 ₽/мес.
    1 680 $/мес.
    1 417 /мес.
    Цена за метр
    6 000 ₽ в год
    Налог
    НДС включен: 22 638 ₽
    Комиссия
    нет
    Коммунальные платежи
    не включены
    Эксплуатационные расходы
    включены
    Управляющая компанияПрофис-недвижимость
    Суперагент