Мы используем куки-файлы. Соглашение об использовании
Помещение свободного назначения, 5 000 м²

Сдается помещение свободного назначения, 5 000 м²

Площадь5 000 м²
Этаж1 из 4
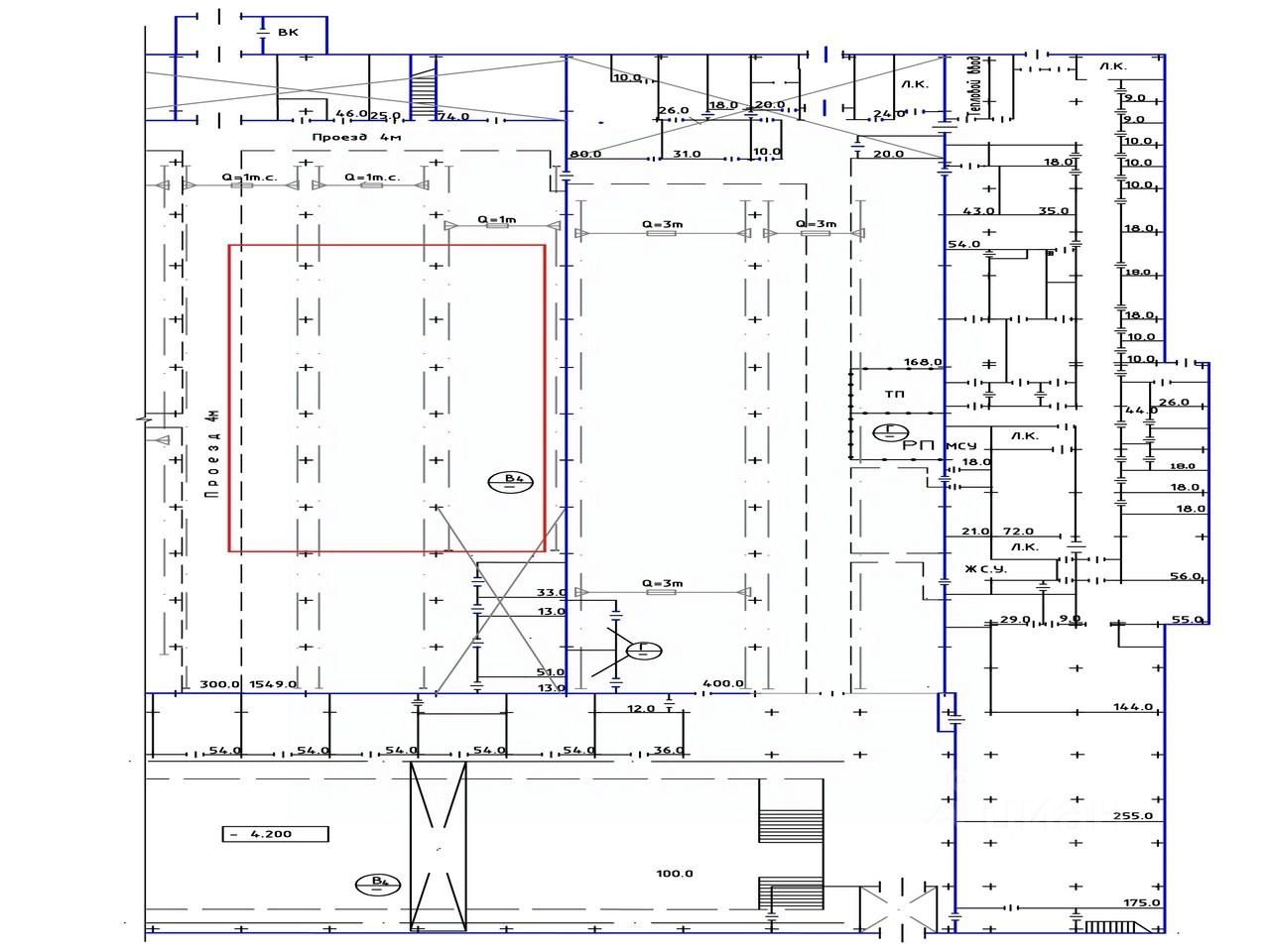
Предлагается в аренду помещение от собственника общей площадью 5000 м2. Планировка свободная. Состояние помещения готово к въезду. Назначение свободное. Высота потолков до 10 м, 1-й этаж, общий вход. Электрические мощности без ограничений. Отлично подходит под производство. Помещения на территории Ярославского Моторного Завода. Остановка общественного транспорта менее 2 минут пешком. Инфраструктура для арендаторов и их посетителей: кафе, столовые, продуктовые магазины. Парковочные места на заводской парковке и вдоль проспекта Октября. Территория находится под круглосуточной охраной и видеонаблюдением, контроль доступа. Коммунальные платежи включены в ставку. Арендная ставка включает НДС. Отдельно оплачивается электричество. При необходимости ремонта предоставляются арендные каникулы. Лот 000003910
lock

Войдите или зарегистрируйтесь
для просмотра информации

Просматривайте условия сделки и всю информацию об объекте
Сохраняйте фильтры в поиске и не вводите заново
Доступ к избранному с любого устройства
Неограниченное добавление в избранное
Позвоните автору
Вам ответят на все вопросы
Остались вопросы по объявлению?
Позвоните владельцу объявления и уточните необходимую информацию.
  • Инфраструктура
  • Похожие рядом
  • Тип зданияПроизводственный цех
  • Общая площадь5 000 м²
Помощь надёжных риелторов
Риелтор партнёр Циан поможет купить или продать любую недвижимость
Управляющая компанияПрофис-недвижимость
Суперагент
  • 14 лет 9 месяцев на Циане
  • 308 объявлений
  • 1 100 000 ₽/мес.
    15 429 $/мес.
    13 287 /мес.
    Цена за метр
    2 640 ₽ в год
    Налог
    НДС включен: 198 334 ₽
    Комиссия
    нет
    Коммунальные платежи
    не включены
    Эксплуатационные расходы
    включены
    Управляющая компанияПрофис-недвижимость
    Суперагент