

107 115 ₽/м²
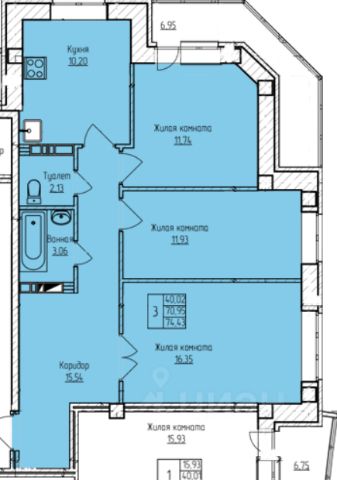
Продаётся 3-комнатная квартира в строящемся доме (1 этап), срок сдачи: IV-кв. 2026, общей площадью 87.2 кв.м., на 8 этаже. Проектируемое здание размещается на земельном участке, расположенном в Заволжском районе Ярославля на пересечении важных городских магистралей - пр. Машиностроителей и ул. Серго-Орджоникидзе на месте сносимого здания заволжского рынка. Его объем состоит из двух 18-этажных башен, объединенных одноэтажным стилобатом. Первый этаж занимают помещения социальной коммерческой инфраструктуры , которые организуют общественное пространство с трех сторон проектируемого здания. Фасады первого этажа, выходящие на улицу имеют витринное остекление что усиливает связь между зданием и пешеходным пространством. Жилые башни визуально закрепляют важный градостроительный узел, формируя запоминающийся образ в месте пересечения городских магистралей. С этой целью здание решено в одном материале терракотового цвета, который объединяет обе башни и стилобат в единую композицию. Кровля стилобата становится продолжением пространства двора, на ней размещается физкультурная площадка и площадки отдыха. Кровли жилых башен тоже эксплуатируемые, на них размещены площадки для занятия физкультурой, площадки для отдыха и хозяйственные площадки. Входные группы жилых башен имеют колясочные. В них находятся по 3 лифта, 1 грузопассажирский и 2 пассажирских. Вход в здание организован с отметки тротуара без необходимости устройства пандусов и лестниц. Все квартиры имеют аварийные выходы в соответствии с противопожарными нормами. Несущие конструкции и перекрытия - монолитный железобетон. Наружные стены - несущие из газосиликатного блока с эффективным наружным утеплением. Облицовка фасадов выполняется по технологии НВФ с применением фиброцементных панелей. Витражи первого этажа - алюминиевые с заполнением прозрачным стеклом. Окна и лоджии квартир - пластиковый переплет с заполнением прозрачным стеклом.






































































































































