86 946 ₽/м²
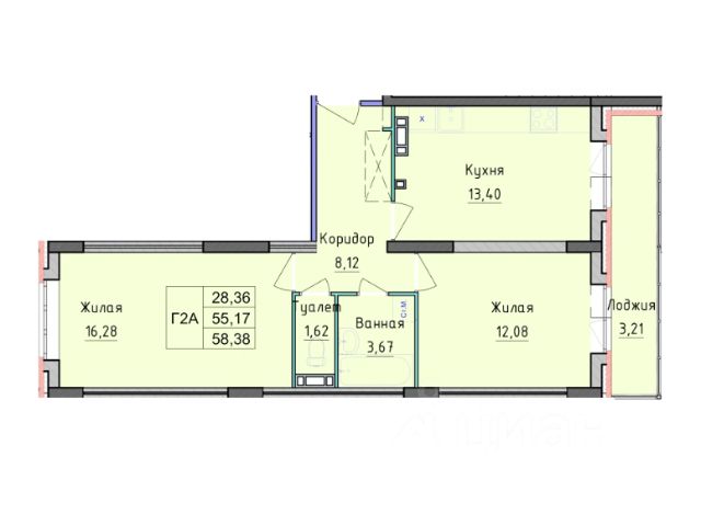
Объект 15119 Продам эксклюзивную 3х комнатную квартиру во Фрунзенском районе! Отличная локация- вторая линия! Дом 2009г. постройки, кирпичный. Комфорт-класс. Закрытая территория. Квартира расположена на 9 этаже из 10, в доме имеется технический этаж. Квартира в середине дома-не угловая. На этаже просторные входные зоны с видеонаблюдением. Оборудованные Колясочные и кладовые для хранения. Очень удобна планировка, комнаты изолированные с окнами на разные стороны дома, изолированный санузел, холл правильной формы и коридор общей площадью 12м2., гардеробная 2,5м2., две глубокие лоджии по 4,5м2. -остеклены и оформлены в комфортные зоны отдыха. Общая площадь 85,5 м2., комнаты имеют правильную форму 20+17+16м2., кухня правильной формы 10 м2., просторная ванная 5м2. В доме Автономная крышная котельная, подача тепла регулируется жильцами. Имеется накопительный водонагреватель объем 50л. Дом оснащен современным грузопассажирским лифтом, тамбур на 2 квартиры запирается, на общей площадке используются помещения колясочной и кладовой. Просторные входные зоны, оборудованные пандусами. Дом управляется ТСЖ "Калинка"- К\у существенно ниже средних- летом 4,5т.р., зимой в среднем 12т.р. БЕЗОПАСНОСТЬ И КОМФОРТ- работает система видеонаблюдения, огорожена и закрыта территория двора, выезды с 2х сторон, организована парковка для авто, парковочных мест достаточно! Придомовая территория ухоженная, с клумбами и озеленением, современной детской площадкой. Парковая зона с лесополосой и озером для прогулок и активного отдыха. ВЕЛИКОЛЕПНАЯ ИНФРАСТРУКТРА- в шаговой зоне доступа- школы 28, 68, д\ сады 12,167,125( построен в 20014г), магазины, банки. СДЕЛКА- 4 совершеннолетних собственника, без долгов и обременений, полная стоимость в договоре купли- продажи. Наше агентство одобрит ипотеку от банков-партнеров сразу в офисе агентства по ставке ниже базовой, проведем сделку быстро и безопасно. БОНУСЫ НОВЫМ ВЛАДЕЛЬЦАМ- Оставляем великолепный встроенный кухонный гарнитур с бытовой техникой, холодильником, шкаф в спальне, спальный гарнитур, остальное по ситуации, всё обсуждаемо. С реальным покупателем обсуждаем торг! ОТ АГЕНТСТВА НЕДВИЖИМОСТИ: Покупатель получает сертификат безопасной сделки со страхованием сделки. Можем оформить титульное страхование. Выгодные финансовые решения, пoлучите инфopмацию о способах покупки (ипотека, рассрочка, трейд-ин и прочие) Вкладывайте средства в ликвидное жилье! В данном районе высокий спрос на аренду! Звоните организуем показ в удобное для Вас время! C удовольствием проконсультируем по любым вопросам недвижимости. Умная недвижимость- Ваш умный выбор! Звоните! Записывайтесь на просмотр!










































































